Si compraste un manual, recibirás el enlace de descarga por correo electrónico dentro de nuestro horario de atención:
🕒 8:00 AM a 12:00 AM (hora de Venezuela).
Si realizaste tu compra en la madrugada, por favor ten paciencia: te enviaremos tu pedido tan pronto como estemos disponibles.
Sabemos que estás esperando tu manual, y queremos que lo recibas lo antes posible.
Si tienes dudas o necesitas ayuda, comunícate a nuestro WhatsApp y con gusto te atenderemos.
¡Gracias por tu confianza y comprensión!
Manual De Taller Y Reparacion Nissan X-Trail (T-32) 2013-2016
$14,95
Haz clic en el botón de pago de PayPal, haz tu pago de forma segura (No es necesario tener una cuenta paypal).
📦 Entrega gratuita via email. Sin suscripciones ni instalaciones complicadas. Solo descargas y usas.

Todos los pagos que realices seran recibidos a TASA BCV. Pide los datos de pago a nuestro whatsapp comunicate aqui
Descripción
NISSAN X-TRAIL (T-32)
“Este no es un resumen. Es el manual completo que usa un técnico certificado Nissan.”
“Lleva el taller contigo.”
“Inversión única. Descarga inmediata. Soporte incluido.”

MANUAL DE TALLER Y REPARACIÓN
NISSAN X-TRAIL (T-32) 2013-2016
Idioma: Inglés
Formato: PDF
Peso digital: 203 MB (aproximadamente comprimido en formato .zip)
Requisitos del sistema:
- Adobe Reader
- Windows XP, Seven, 8 y 10
Si usa un sistema MAC por favor debe manifestarlo al momento de su pago.
Motores Avalados
- 2.0l dohc modelo mr20dd (4 cilindros en línea, 16 válvulas).
- 2.5l dohc modelo qr25de (4 cilindros en línea, 16 válvulas).
- 1.6l dohc diesel modelo r9m (4 cilindros en línea, 16 válvulas).
Transmisiones avaladas:
- Manuales modelos: RS6F52A Y RS6F94R
- Automáticas modelos: RE0F10D
Descripción:
El manual de reparación para NISSAN X-TRAIL (T-32) 2013-2016 (exactamente como se muestra en este anuncio), lo ayudará a resolver las posibles fallas o problemas técnicos que surjan en su vehículo y también le ayudará obviamente a retirar las piezas del vehículo y desarmarlo.
Algunos temas incluidos:
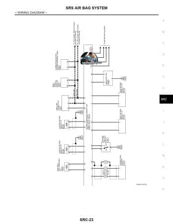
- Diagramas electricos
- *Manual de taller
* Adicional a lo mencionado anteriormente, el manual de taller incluye:
- Información general
- Motor
- Suspensión
- Eje de transmisión
- Frenos
- Asientos
- Transmisiones / Transaxle
- Direccion
- (HVAC) calefacción, ventilación
- Restricciones
- Cuerpo y accesorios
- Y mucho más (preguntar si tiene dudas)
Nota importante: Si su automóvil es de edición especial o tiene alguna característica especial, por favor debe consultarlo antes. Igualmente si está interesado en algún tema en particular, debe preguntar.
¿Cómo sería la entrega?
1: Elige el manual de reparación que prefieras.
2: Realice su pago (si tiene problemas para realizar su pago, contactenos a traves de whatsaap haciendo clic en Contactar).
3: Una vez hecho su pago, lo comprobaremos y recibirá un mensaje en su cuenta de correo electrónico en menos de 1 hora con el enlace de descarga del archivo pertenciente a su pedido. Si pago usando criptomonedas o pago en bolivares de Venezuela debera proporcionarnos via whatsapp su email para enviarle su pedido.
Información adicional
| Fabricantes |
|---|












Deja una respuesta
Lo siento, debes estar conectado para publicar un comentario.